SAC
Servicio de Atención a la Ciudadanía

Noticias

Adjudicado el proyecto de urbanización de Majaravique en La Rinconada

Urbanismo |

La primera fase, con casi 350.000 metros cuadrados, estará lista en 2023, tras una inversión de 37,5 millones de euros y generará 700 empleos durante las obras y 5.000 más una vez puesto en servicio

La Consejería de Fomento, Infraestructuras y Ordenación del Territorio, a través de la Agencia Pública de Puertos de Andalucía, ha adjudicado por 167.706 euros el contrato para la redacción y tramitación del proyecto de urbanización de la primera fase del Área Logística de Interés Autonómico de Majaravique, en La Rinconada, a la UTE Gestión Integral del Suelo, SL-Befesa Gestión de Negocios, SLL.

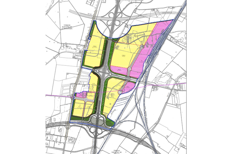
El Área Logística de Majaravique, un proyecto común del Ayuntamiento y la Junta, abarcará una superficie de 207 hectáreas cuando esté totalmente desarrollada. La primera fase contará con 69 hectáreas de suelo bruto y cerca de 350.000 metros cuadrados de parcelas logísticas de gran superficie o megaparcelas.

La inversión prevista para la urbanización de esta primera fase, que estará lista en 2023, está próxima a los 37,5 millones de euros, cofinanciados al 80 por ciento por el Fondo Europeo de Desarrollo Regional y se estima que se generarán 700 empleos durante la fase de obras y cerca de 5.000 puestos de trabajo directos cuando esté en explotación.

Está en un enclave estratégico, por su ubicación en el principal nudo de comunicación del área metropolitana, entre el paso norte SE-35 y la autovía SE-40, junto al centro logístico de ADIF. Además, tiene la capacidad suficiente para desarrollar la ampliación del actual Centro de Transportes de Sevilla, que desde hace más de una década se encuentra al cien por cien de su capacidad, y al mismo tiempo, la oportunidad de dotar a Sevilla de una gran plataforma logística intermodal, que permita aprovechar todo el potencial de los Corredores Ferroviarios de la Red Transeuropea de Transporte.

El alcalde de La Rinconada, Javier Fernández, se ha referido a este proyecto como “un proyecto ganador”, destacando que “hablamos de un terreno que es cuatro veces Aerópolis, que va a generar 5.000 puestos de trabajo”. “Es un proyecto del Ayuntamiento y la Junta que no va a tener problemas. Por nuestra parte vamos a estar detrás de la Junta apretando para llevar a buen puerto este proyecto que va a ser de los más importantes en el ámbito logístico de los últimos 20 años”. Fernández, que presentaba en su día el proyecto a los empresarios de la provincia, ha asegurado que desde La Rinconada ya se trabaja en una Escuela de Logística que va a formar a personal cualificado en dicha materia para cuando el proyecto entre en servicio.

Por su parte, el responsable municipal de Nuevos Desarrollos Empresariales, Francisco Manuel Díez, se ha referido a que “la primera fase es de 60 hectáreas y está delimitada por tres grandes zonas. Parcelas logísticas para empresas, zona común de oficinas y servicios, y doble zona ferroviaria. Sin olvidar, que está a 15 minutos del aeropuerto y del puerto de Sevilla”. "Es de interés autonómico para la Junta y está incluido en el POTAUS y aprobado en el PGOU de la Rinconada".

Este sitio web usa cookies propias y de terceros para mejorar nuestros servicios y recoger información sobre su navegación. Si pulsa "aceptar" o continúa navegando consideraremos que admite el uso e instalación en su equipo o dispositivo. Encontrará más información en nuestra Política de Cookies.